Добро пожаловать на http://vipplan.ru

Випплан Краснотурьинск - это тысячи проектов домов в нашем каталоге!

Вы всегда сможете найти для себя проект дома вашей мечты! Даже если этого не случилось, мы готовы в любую минуту предложить проект индивидуального дома.

Забыли пароль?
Вы еще не регистрировались?

Перейдите по ссылке ниже на страницу регистрации.

Регистрация...

Внимание!!!

В проектную документацию могут быть внесены изменения любой сложности, в соответствии в Вашими пожеланиями!

Полезные статьи

Выбор проекта дома в Краснотурьинске

Выбор проекта дома может завести семью в тупик. Прийти к одному конкретному мнению всем членам семьи очень сложно. Кому-то по душе, чтобы дом был большой и одноэтажный, с красивой террасой или верандой, кому-то хочется жить в двухэтажном доме с балконом. Детям, в основном, нравятся дома с мансардой....

Газобетонные перекрытия

Перекрытия из газобетонных плит, устанавливаются без применения подъемников и кранов. Строители устанавливают прочные и, что немаловажно, легкие газоблоки без помощи техники. Ячеистый бетон (пенобетон и газобетон) нашел широкое применение в домах из пенобетона и газобетона в Краснотурьинске...

Проекты домов и коттеджей > Каталог проектов домов > Дом с мансардой, гаражом, террасой и балконами Vg962

Дом с мансардой, гаражом, террасой и балконами Vg962

Дом с мансардой, гаражом, террасой и балконами
Зарегистрируйтесь

Проект № Vg962


Техническое описание
Общая площадь: 150.36 м2
Жилая площадь: 87.64 м2
Высота здания: 8.02 м
Размеры дома: 10.68м×8.88м
Кол-во комнат: 5
Цокольный этаж: нет
Гараж: нет
Мансарда: есть

Kонструкция
Фундамент: свайно-ростверковый
Перекрытия: металлические балки
Материал стен: Газобетон

Архитектурный раздел
Конструктивный раздел
АР+КР - 52 000 (Со скидкой 20%)
Проект удобного дома с мансардой и гаражом с размерами 10,68 x 8,88 м. Наружная отделка здания - плоским шифером с нанесением декоративной штукатурки.Частично по фасаду отделка камнем. Цоколь - камень. Фундамент - свайно-ростверковый. Наружные стены запроектированы из: газобетонных блоков, пеноплекса и плоского шифера. Внутренние стены и перегородки - из газобетонных блоков. Перемычки - монолитные и сварные из профиля проката. Перекрытие межэтажное – по металлическим балкам. Пол первого этажа - пол по грунту. Крыша -многоскатная. Материал кровли - металлочерепица. Окна - металлопластиковые, выполненные по индивидуальному заказу. Лестница выполняется по индивидуальному заказу.
Генплан застройки участка / Паспорт проекта 7000 руб / 10000 руб
Инженерный раздел (полный) 75000 руб
Смета на строительство 37500 руб
Теплотехнический расчет материалов стен Бесплатно
Стоимость проекта со незначительнми изменениями 61250 руб
Стоимость проекта со средними изменениями* 72500 руб
Стоимость проекта со значительными изменениями** 75500 руб

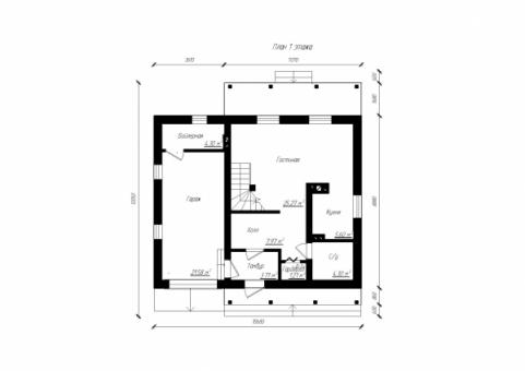
План первого этажа


Гостиная - 25,27 кв м
Кухня - 5,60 кв м
Холл - 7,97 кв м
Бойлерная - 4,30 кв м
Тамбур - 3,71 кв м
С/у - 4,30 кв м
Гардероб - 1,21 кв м

План мансардного этажа


Гардероб - 6,44 кв м
Спальня - 19,96 кв м
Комната отдыха - 9,96 кв м
Спальня - 12,34 кв м
Холл - 2,59 кв м
Спальня - 20,11 кв м
Дом с мансардой, гаражом, террасой и балконами Дом с мансардой, гаражом, террасой и балконами Дом с мансардой, гаражом, террасой и балконами Дом с мансардой, гаражом, террасой и балконами

Модификации проектов

Внесение изменений и привязка к участку строительства

В любой из проектов от компании VIPplan - Краснотурьинск по вашему желанию могут быть внесены изменения в материалы стен, материалы наружной отделки дома, а также будет произведена адаптация проекта под конкретный регион строительства (с учетом грунтов региона, геологических особенностей вашего участка и местных климатических условий) - БЕСПЛАТНО !!! (кроме проектов со скидкой и проектов наших партнеров).

Любой из проектов, размещенных на сайте krasnoturinsk.vipplan.ru мы можем выполнить из требуемых вам строительных материалов: ячеистый бетон (газобетон, пеноблок), керамоблок, кирпич, шлакоблок, бетонный блок, дерево (брус, клееный брус), каркасная технология (деревянный каркас, металлокаркас (ЛСТК)).

Фасад дома и его наружную отделку так же возможно выполнить с применением различных облицовочных материалов: структурной штукатурки, (с утеплителем и без), сайдингом (пластиковый или металлосайдинг), фиброплитами, кирпича.

 
6 Избранные
проекты

Доставка проектов по России: Москва (Московская область), Санкт-Петербург (Ленинградская область), Краснодар, Ростов-на-Дону, Ставрополь, Сочи, Волгоград, Новосибирск, Белгород, Брянск, Воронеж, Саратов, Хабаровск, Астрахань, Нальчик, Владикавказ, Екатеринбург, Тюмень, Самара, Нижний Новгород, Казань, Пермь, Уфа, Челябинск, Красноярск, Ханты-Мансийск, Иркутск, Курган, Оренбург, Омск, Томск, Барнаул, Новокузнецк, Кемерово, Абакан, Чита, Якутск, Южно-Сахалинск, Петропавловск-Камчатский и страны ближнего зарубежья: Белоруссия, Украина, Казахстан